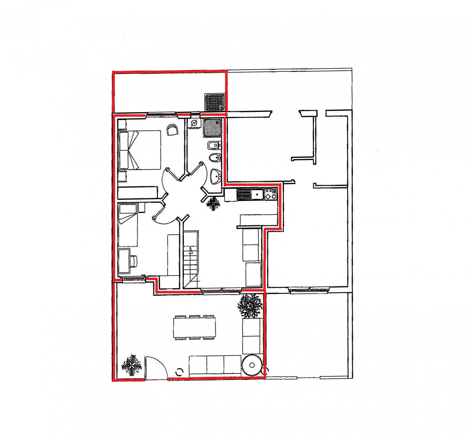
Rif. POLIZIANO 2C
TRILOCALE CON INGRESSO INDIPENDENTE A DUE PASSI DAL MARE - ZONA TOMBOLO -
- Tipologia: Appartamenti al mare
- Superficie: 55m2
- MARINA DI GROSSETO, TOMBOLO, Via POLIZIANO,2C
- 3
- 1
TRILOCALE CON INGRESSO INDIPENDENTE A DUE PASSI DAL MARE - ZONA TOMBOLO - - MARINA DI GROSSETO
A MARINA DI GROSSETO , IN ZONA TOMBOLO DEMANIALE , A POCHI METRI DALLA SPIAGGIA E DAL PORTO TURISTICO PROPONIAMO IN VENDITA GRAZIOSO APPARTAMENTO TRILOCALE AL PIANO TERRA CON INGRESSO INDIPENDENTE . L'IMMOBILE SI COMPONE DI UNA LUMINOSA VERANDA D'ACCESSO CON PIACEVOLE SCORCIO SUL MARE , SOGGIORNO CON ANGOLO COTTURA , CAMERA MATRIMONIALE , CAMERA DOPPIA , BAGNO CON BOX DOCCIA E FINESTRA E PICCOLA CORTE POSTERIORE . L'APPARTAMENTO E' DOTATO DI IMPIANTO DI CLIMATIZZAZIONE CALDO/FREDDO . PREZZO DI RICHIESTA € 190.000,00
Dettaglio
- Tipologia: Appartamenti al mare
- Classe energetica: F
- Ipe: 86Kw/h
- Piano: Piano terra
- Piani immobile: 1
- Costruzione: Usato
- Ingresso: Indipendente
- Superficie: 55 mq
- Vani: 3
- Bagni: 1
- Ascensore: 1
- Giardino: 1
POLIZIANO,2C






























