LUMINOSO E AMPIO APPARTAMENTO POSTO AL PRIMO PIANO CON TERRAZZO
- Tipologia: Appartamenti in citta
- Superficie: 113m2
- GROSSETO, , Via GIULIO CESARE,69
- 4
- 2
LUMINOSO E AMPIO APPARTAMENTO POSTO AL PRIMO PIANO CON TERRAZZO - GROSSETO
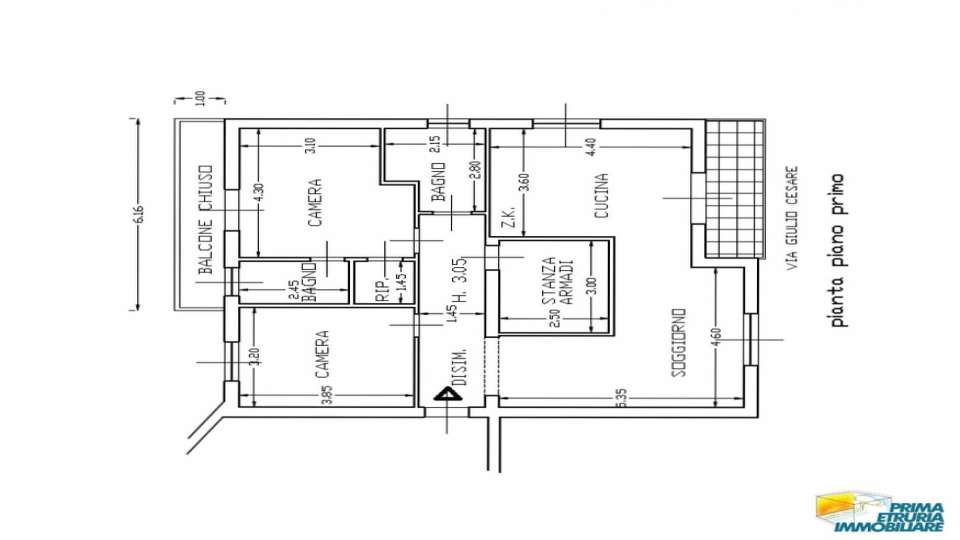
LA NOSTRA AGENZIA PROPONE IN VENDITA IN ESCLUSIAVA AMPIO APPARTAMENTO AL PIANO PRIMO DI 113 MQ COMMERCIALI IN GROSSETO VIA GIULIO CESARE . L'IMMOBILE E' PARTICOLARMENTE LUMINOSO DOTATO DI TERRAZZO SUL FRONTE E VERANDA CHIUSA SUL RETRO. L'APPARTAMENTO E' IN OTTIME CONDIZIONI IN QUANTO PARZIALMENTE RISTRUTTURATO NEL 2004. NEL 2018 SONO STATI VERIFICATI E CERTIFICATI GLI IMPIANTI ELETTRICI E IDRAULICI ED E' STATA INSTALLATA UNA NUOVA CALDAIA. IL FABBRICATO E' STATO RECENTEMENTE OGGETO DI RIFACIMENTO DELLA FACCIATA E DOTATO DI ASCENSORE IL CUI DIRITTO ALL'UTILIZZO PUO' ESSERE ACQUISITO PREVIO PAGAMENTO DELLA QUOTA DI SPESA SPETTANTE. L'APPARTAMENTO E' COMPOSTO DA CUCINA, SOGGIORNO, CAMERA MATRIMONIALE CON BAGNO CON FINESTRA, SECONDA CAMERA MATRIMONIALE, STANZA ARMADI UTILIZZABILE ANCHE COME TERZA CAMERA, E BAGNO CON FINESTRA. COMPLETA LA PROPRIETA' PICCOLA CANTINA AL PIANO SEMINTERRATO. IL FABBRICATO INOLTRE DISPONE DI CORTE CONDOMINIALE CHIUSA DOVE VI E' LA POSSIBILITA' DI PARCHEGGIARE BICICLETTE O MOTORINO. PREZZO DI RICHIESTA EURO 158.000,00
Dettaglio
- Tipologia: Appartamenti in citta
- Classe energetica: D
- Ipe: 57Kw/h
- Piano: 1
- Piani immobile: 4
- Costruzione: Usato
- Ingresso: Condominiale
- Superficie: 113 mq
- Vani: 4
- Bagni: 2
GIULIO CESARE,69






























